您现在的位置是:首页 > CAD画图 > CAD画图
中望CAD实操之平键和齿轮的安装
本文转载来源:zwcad.com zwsoft.cn 中望CAD官方教程.如果作者或相关权利人不同意转载,请跟我们联系,我们立即删除文章。2021-05-08
简介我们在CAD中需要进行对平键和齿轮的安装,当这样是我们该如何正确操作绘制我们需要的内容,大家可参考我们下列的步骤,看看是否能够帮到大家。 1.轴的绘制 直线根据每个轴肩的
我们在CAD中需要进行对平键和齿轮的安装,当这样是我们该如何正确操作绘制我们需要的内容,大家可参考我们下列的步骤,看看是否能够帮到大家。
1.轴的绘制
直线根据每个轴肩的尺寸先绘制轴的一半,然后利用镜像工具将已绘制的轴以一开始绘
制的水平中心线为对称轴镜像。轴由长度为58、56、41、60、10、10、30的轴段组成,而它们的对应半径分别是17.5、20、22.5、24、27.5、26、22.5。
绘制好后,进入块编辑器进行拉伸动作块操作。

2.键
矩形绘制一长56,宽为10的矩形,选用圆角工具倒圆角,倒角半径为5。
3.齿轮
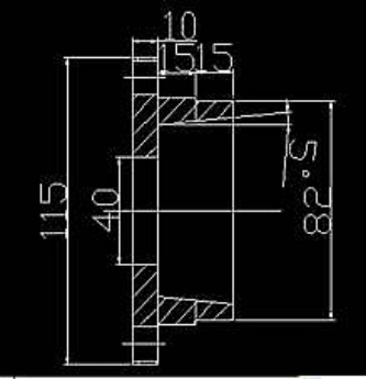
齿轮剖视图是将齿轮半解剖得到的,具体形状和尺寸见视频操作。
齿轮俯视图是根据机械制图中的“高、平、齐”的对应原则绘制的,先用直线捕捉剖视
图上的参考点做水平拉伸做辅助线,选择圆捕捉辅助线上的切点做轮毂外形。最后利用阵列工具绘制齿轮上的齿,齿数为38个。
绘制好后,进入块编辑器进行缩放动作块操作。

4.滚球轴承

复习工具选项板窗口,通过工具选项板窗口直接插入滚珠轴承动态块。
工具选项板窗口操作:点击“工具”菜单>工具选项板,在弹出的选项板中选择机械模板中的滚珠轴承,直接插入CAD界面即可。
5.轴承盖子
具体操作见视频。这里要注意左轴承盖和右轴承局部形状不一样,左轴承盖在中心线位
置多一个直径40的通孔。

6.零件组装
以各个零件的水平中心线为基准线,利用移动和复制功能捕捉特征点进行安装。
装配好后,进入块编辑器中进行零件可见性块操作。

7.零件标号标注
利用新增功能:项目符号和列表对装配图上的零件进行注释。
操作步骤:绘图>文字>多行文字。在弹出的文字格式对话框中单击选项按纽,选择项目符号和列表。
8.提取快操作数据
利用新增功能:从块属性中提取数据对二维CAD操作环节的块操作信息进行数据提取。
操作步骤:工具>属性提取。
点击排行
CAD多种快速移动图形的方法