您现在的位置是:首页 > CAD画图 > CAD画图
中望CAD多重引线怎么使用
本文转载来源:zwcad.com zwsoft.cn 中望CAD官方教程.如果作者或相关权利人不同意转载,请跟我们联系,我们立即删除文章。2021-05-08
简介CAD多重引线怎么使用 多重引线功能是引线QLEADER(LE)功能的延伸,它可以方便地为序号标注添加多个引线,可以合并或对齐多个引线标注,在装配图、组装图上有十分重要的作用。 1、多
CAD多重引线怎么使用
多重引线功能是引线QLEADER(LE)功能的延伸,它可以方便地为序号标注添加多个引线,可以合并或对齐多个引线标注,在装配图、组装图上有十分重要的作用。
1、多重引线的组成
多重引线对象由内容、基线、引线和箭头四个基本部分组成,如下图。各部分的设置都比较灵活,内容可以为多行文字,可以为块对象,也可以使内容为空;基线是可选的,用户可在多重引线样式中设置基线的长度;引线也是可选的,当使用引线时,可以将引线设置为直线或样条典线;箭头的风格和大小也可以在多重引线样式中设置。由于多重引线是一个统一的标注整体,因此修改和调整都很方便。

2、添加引线
利用添加引线功能可以方便地为多重引线添加多条引线,具体操作步骤如下:
1) 选择“添加引线”菜单命令。
2) 选择多重引线标注。

3) 指定引线的位置。必要时,可连续添加多条引线。

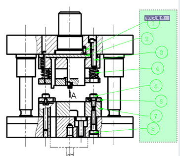
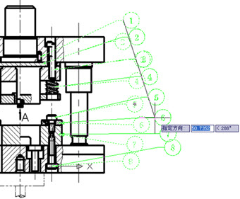
3、引线对齐
当创建了多个引线后,可以利用引线对齐功能将引线排列整齐,让图片看起来更加整洁。
1) 选择多重引线的“对齐”菜单命令。
2) 选择需要对齐的多重引线。

3) 选择对齐的参照对象。

4) 指定对齐方向。

5) 完成对齐。

点击排行
CAD多种快速移动图形的方法