您现在的位置是:首页 > CAD画图 > CAD画图
中望CAD多重引线怎么合并
本文转载来源:zwcad.com zwsoft.cn 中望CAD官方教程.如果作者或相关权利人不同意转载,请跟我们联系,我们立即删除文章。2021-05-08
简介CAD多重引线怎么合并 当CAD图纸部件之间关联密切,而且空间相对有限时,可使用“合并”功能将多个多重引线对象合并为一个。步骤如下: 1、选择多重引线的“合并”菜单命令。 2、
CAD多重引线怎么合并
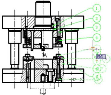
当CAD图纸部件之间关联密切,而且空间相对有限时,可使用“合并”功能将多个多重引线对象合并为一个。步骤如下:
1、选择多重引线的“合并”菜单命令。
2、选择需要合并的多个多重引线。

3、指定合并方向。此处输入V,选择以垂直的方向进行合并。

4、指定多重引线的位置。

5、完成多重引线的合并。

点击排行
CAD多种快速移动图形的方法