您现在的位置是:首页 > CAD画图 > CAD画图
中望CAD水洗塔净化工程设计案例分享
本文转载来源:zwcad.com zwsoft.cn 中望CAD官方教程.如果作者或相关权利人不同意转载,请跟我们联系,我们立即删除文章。2021-05-08
简介CAD水洗塔净化工程设计案例分享 现在很多工业方面的施工平面图都是可以用CAD来实现的,例如:重工业行业的除尘、净化、通风、中央空调等,下面为大家分享一个工业当中常见的水洗
CAD水洗塔净化工程设计案例分享
现在很多工业方面的施工平面图都是可以用CAD来实现的,例如:重工业行业的除尘、净化、通风、中央空调等,下面为大家分享一个工业当中常见的水洗塔净化工程的案例。
在除尘领域当中,水洗塔的除尘效果也是非常环保的,它比较适合小型的车间净化使用,在行业中大面积的净化一般都是采用其它更大型的净化装置来做为主机,这样才能达到更好的效果。

在这个行业中,如果你想要设计出这么一套净化方案出来的话,首先,你必须要对工业净化原理和设备的使用特点有一定的了解才能做到,要不然的话,你无法成功的设计出一套合理的设计方案;其实,这和每个行业的CAD设计都是有关系的,假如你是室内设计的,你必然也是要对家居的摆放以及装修有一点的了解,不管你从事哪一行业的设计,对本身设计行业的了解是必修课。
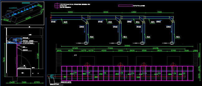
今天这个案例主要是讲得是一个工业熔解炉车间的空气净化系统,它主要的功能就是使车间设备产生的有毒或者有污染的气体进行净化排放,达到环保的目的。

设计所需元素:
一、主体设备(抽风机+水洗塔)
要想让里面的有害空气出来,首先要有个抽风机,即行业专业叫法“离心抽风机”,然后经过抽风机后再接入环保水洗塔,这样所排出来的空气才算是环保的。

二、抽风管道
空气是气体物质,要想输出,肯定必须得有管道才行,至于这个管道是采用什么材质来设计一般是需要根据客户的要求的,主要有镀锌板材和不锈钢板材两种。
三、抽烟罩
这个在抽风系统中以不同的角色出现,一般没有规定,主要根据现场而定,像这个工程案例,它就比较适合用抽风罩去进行集气。
以上就是水洗塔净化工程的平面图绘制的方案,希望大家的喜欢。
点击排行
CAD多种快速移动图形的方法