CAD画图
CAD画图
-
中望CAD中点过的地方总是出现小的加号是什么
CAD画图
有没有遇到过在CAD中点击过后的地方都出现了一个小小的加号,这些加号好像也选不中,我们怎么才能去掉这些加号呢?这些加号又是什么东西? 我们看看这些加号是什么样子的吧~ 这...
阅读更多 -
怎么才能在中望CAD中快速的画出圆的中心线
CAD画图
当我们在CAD中绘制圆形或者圆弧时,同时要求我们绘制中心线。有很多人会在这时候采用一个老方法去解决。那就是通过捕捉圆心或者象限点的方法绘制中心线,这个办法当然是可行的...
阅读更多 -
中望CAD怎么让两段直线合并?
CAD画图
当我们在CAD中绘制了两条水平的直线,如果我们想要将其合并成一条直线我们该怎操作呢? 解决办法也是挺简单的, 我们来看看吧。 我们只要在命令行中输入【J】即为合并图形的快捷...
阅读更多 -
在中望CAD中怎么创建拐角
CAD画图
在CAD中如果我们有两条不平行的两条直线,该怎么快速创建出拐角,因为我们如果使用修剪或者是延伸的话我们要操作很多次,比较麻烦,那么我们有其他的快捷办法吗? 如果要创建拐...
阅读更多 -
中望CAD怎么去扩大绘制空间
我们在CAD的绘图的时候,可能会遇到很大的零件的二维图,如果我们遇到这样的情况,我们怎么去扩大我们的绘制界限来方便我们去完成我们的绘制? 这个问题的解决办法其实很简单,...
阅读更多 -
中望CAD中怎么快速画出垂直线
CAD画图
我们在CAD绘制或是设计的时候,会常常绘制很多相互垂直的直线,但是由我们自己手动去绘制就会比较困难画出十分垂直的两条线,我们如果想要又快又好的画出来有什么快捷的办法方...
阅读更多 -
中望CAD中怎么将线移动一定的距离?
CAD画图
如果我们在CAD中绘制的时候,有一点点的小误差的时候,我们就需要将其往正确的方向移动一点点。 那么如何操作这个步骤呢? 1.我们先随意绘制出两条不相交的直线,我们的目的是将...
阅读更多 -
中望CAD中一般采用什么比例绘制?
我们在CAD的绘图过程中,我们需要考虑到绘图时候的一个比例设置,因为不恰当的比例直接就影响我们最终打印出的效果。要避免这样的情况发生,我们就需要采用一个合适的比例去绘...
阅读更多 -
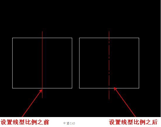
中望CAD中怎么让中心线更加明显
CAD画图
CAD在绘制中线的时候,有些人的显示就是一条直线,这样会导致后期的绘图不方便和不明显,容易导致失误和不必要的麻烦。我们怎么才能设置好CAD的中心线呢? 我们来看快解决办法,...
阅读更多 -
中望CAD中复制的图形之后尺寸值变化了
我们在CAD绘图的时候,经常需要将一个图纸当中的图元复制黏贴到另一个图纸去,但是复制完毕之后才发现原本的尺寸的界限就错位了,然后有时候标注的尺寸值也发生了改变,这是什...
阅读更多
点击排行
CAD多种快速移动图形的方法