您现在的位置是:首页 > 电气技术 > 电气技术
电气建筑照明设计与案例分析
来源:艾特贸易2017-03-18
简介电气建筑照明设计与案例分析 一、照明施工设计标准 《工业企业照明设计标准》、《民用建筑照明设计标准》、《城市道路照明设计标准》、《低压配电设计规范》、《供配电系统设
电气建筑照明设计与案例分析
一、照明施工设计标准
《工业企业照明设计标准》、《民用建筑照明设计标准》、《城市道路照明设计标准》、《低压配电设计规范》、《供配电系统设计规范》、《电气装置安装工程电缆线路施工及验收规范》、《电气装置安装工程接地装置施工及验收规范》、《电气装置安装工程盘、柜及二次回路结线施工及验收规范》、《建筑电气安装工程质量检验评定标准》等。
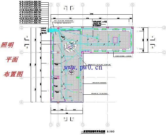
二、照明设计施工图
(一)绘制标准
1.图幅;2.图标;⒊比例;⒋图线;⒌字体
(二)照明施工图组成
⒈图纸目录;⒉设计总说明;⒊总平面图;⒋平面布置图;⒌系统图;⒍大样图
(三)施工图的技术交底
(四)竣工图和工程结算
强电设计说明
一、设计依据:
1、建筑平立剖面及结构图2、各专业提供的用电设备资料;
3、业主对电气设计的有关要求;4、《民用建筑电气设计规范(JGJ/T16-92)》及《建筑设计防火规范(2001年版)(GBJ16-87)》
二、设计范围及内容:
1、380V/220V照明配电系统;
三、供电电源:
本工程用电负荷属三级负荷。
由配电间原有配电箱M1(如左图变动)引出。
四、照明供电:
灯具选型,兼顾照度与节能、舒适和美观。荧光灯须采用电子镇流器,采用气体放电灯光源的灯具采用电感镇流器,须单灯具加电容补偿功率因数至0.9。
所有照明用电设备均为单相220V。采用放射式配电系统。
五、线路敷设及设备安装方式、高度:(除图中已注明外)
1、所有照明分支线路均采用BV-750型塑料绝缘铜芯线除底层穿镀锌钢管(G)沿地暗敷外,均穿套接紧定式钢导管电线管(JDG)沿墙、沿地、沿顶/吊顶内暗敷。
2、平面图中超长线路部分应根据规范要求,在适当部位增设过路箱或接线盒。
3、电线穿电线管管径选择:
JDG20 JDG25 2JDG25
BV-2.5 1~5根 6~8根 >8根
BV-4.0 1~3根 4~8根
4、设备安装方式及高度:
照明配电箱底边距地1.3米嵌墙暗装/挂墙明装;照明开关底边距地1.3米暗装;插座底边距地0.3米暗装;照明灯具安装方式详见建施;其它详见图纸说明。
六、保安措施:
本工程采用TN-S系统,三相四线制配线,PE线专设。
七、其它:
1、本说明未述及之处,请施工部门参照相关规范、规程及做法进行施工。施工与建筑装饰等相关专业紧密配合。

点击排行
室内风扇电机和霍尔元件的检测