您现在的位置是:首页 > PLC技术 > PLC技术
计数器指令有什么功能,有哪些类型
来源:艾特贸易2017-12-28
简介计数器是用来累计输入脉冲次数的。它是应用非常广泛的编程元件,经常用来对产品进行计数或进行特定功能的编程。使用时要提前输入它的设定值(计数范围)。当计数触发条件满足
计数器是用来累计输入脉冲次数的。它是应用非常广泛的编程元件,经常用来对产品进行计数或进行特定功能的编程。使用时要提前输入它的设定值(计数范围)。当计数触发条件满足时,计数器开始累计它的输入端脉冲的上升沿(正跳变)的次数。当计数器计数达到预定的设定值时,其常开触点闭合,常闭触点断开。
1)增计数器指令(CTU)
增计数器指令如图6-22所示,使该计数器在每一个CU输入的上升沿(从OFF到ON)递增计数,直至计数最大值。当当前计数值(Cxxx)大于或等于预置计数值(PV)时,该计数器位被置位,当复位输入(R)置位时计数器被复位。
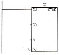
2)增/减计数器指令(CTUD)
增/减计数器指令如图6-23所示,使该计数器在每一个CU输入的上升沿递增计数,在每一个CD输入的上升沿递减计数。当当前值(Cxxx)大于或等于预置计数值(PV)时,该计数器位被置位,当复位输入(R)置位时计数器被复位。

图6-22 增计数器指令

图6-23 增/减计数器指令
3)减增计数器指令(CTD)
减增计数器指令如图6-24所示,使该计数器在每一个CD输入的上升沿(从OFF到ON)从预设值开始递减计数,当当前计数值(Cxxx)等于零时该计数器位被置位,当复位输入(R)置位时计数器把预设值(PV)装入当前值(CV),当计数值达到零时停止计数。

图6-24 减增计数器指令
计数器范围Cxxx=C0~C255。增计数器指令在语句表(STL)中,栈顶第一个值是CTU复位输入,第二个值是CU输入。
增/减计数器指令在语句表(STL)中,栈顶第一个值是复位输入,第二个值是CD输入,第三个值是CU输入。
减增计数器指令在语句表(STL)中,栈顶第一个值是CTD装载输入,第二个值是CD输入。
计数器范围与对应的输入/输出数据如表6-8所示。
表6-8 计数器范围与对应的输入/输出数据

(部分原创文章应编辑稿费需求,每篇需要收取2元的稿费,如需查看全文请联系客服索取,谢谢理解!在线客服:
)
点击排行
PLC编程的基本规则
