电气技术
电气技术
-
自恢复保险丝应用领域
常用保险丝规格有哪些 自恢复保险丝在生活中的应用非常广泛,常常应用在电子行业,常见的有镇流器、变压器、喇叭、电池、化学电池等等,这些都是应用比较频繁的行业,小编给大...
阅读更多 -
接近开关npn与pnp的区别及选择
电气技术
PNP、NPN 表示的意思是什么。P表示正、N表示负。PNP表示平时为高电位,信号到来时信号为负。NPN表示平时为低电位,信号到来时信号为高电位输出。接近开关和光电开关只是检测电路不...
阅读更多 -
开关电源光耦的作用及典型接法图
电气技术
1、常见的几种连接方式及其工作原理 常用于反馈的光耦型号有TLP521、PC817等。这里以TLP521为例,介绍这类光耦的特性。 TLP521的原边相当于一个发光二极管,原边电流If越大,光强越强,...
阅读更多 -
自恢复保险丝参数符号说明
自恢复保险丝参数符号说明 Ih 自恢复保险丝元件在25℃环境温度下的最大的工作电流 It 自恢复保险丝元件在25℃环境温度下启动保护的最小电流 Imax 自恢复保险丝元件能承受最大电流...
阅读更多 -
接近开关工作原理及使用方法
一、接近开关工作原理 电容式接近开关的敏感元件由导电极板系统组成,可被视为一个或一组电容,附近出现或经过的导电体和介电体改变极板系统中的静电场分布,从而改变敏感元件的电...
阅读更多 -
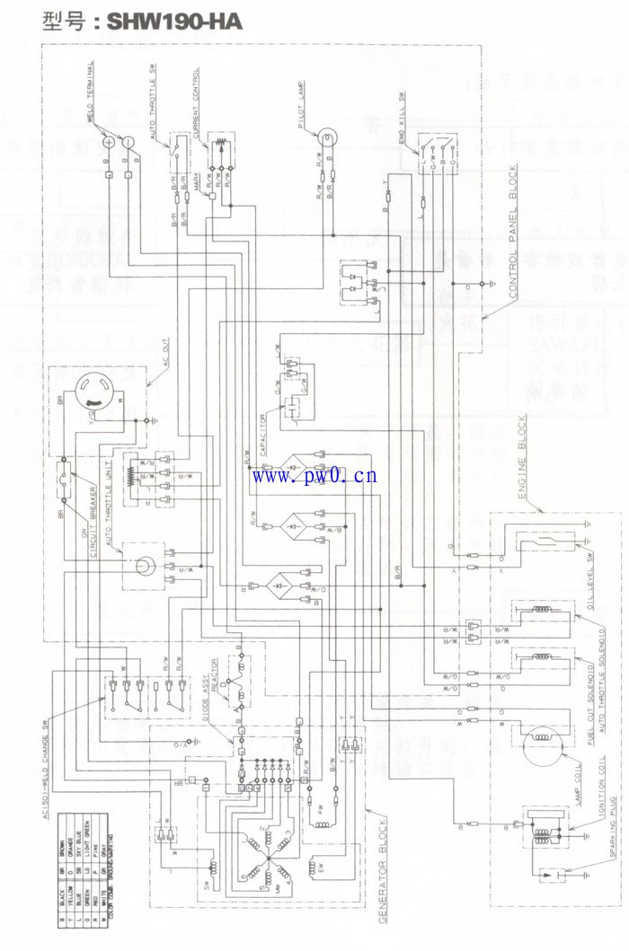
泽藤SHW190发电电焊机电路图
电气技术
泽藤SHW190发电电焊机 电路图...
阅读更多 -
保险丝为什么熔断?保险丝熔断原因
保险丝为什么熔断?保险丝熔断原因 保险丝熔断是因为电流流过保险丝,电流产生热量使熔丝发热,如果热量不能及时散失掉,熔丝持续升温达到熔点后就会融化断开,保险丝就会被熔...
阅读更多 -
限位开关电路原理图
电气技术
限位开关又称行程限位开关,用于控制机械设备的行程及限位保护。在实际生产中,将行程限位开关安装在预先安排的位置,当装于生产机械运动部件上的模块撞击行程开关时,行程限...
阅读更多 -
戴维南定理有哪些方法求等效电阻
戴维南定理有哪些方法求等效电阻 将电路中的电压源断路,电流源短路,这时电路中只剩下电阻,用串并联法则求电阻即可.要从输出端看进去求总电阻. 戴维南定理:任一含源线性时不变一...
阅读更多 -
如何区分保险丝快断和慢断
保险丝一般都有自己特定的属性,例如按照熔断速度来分会用不同的字母表示,特慢速保险丝(TT),慢速保险丝(T),中速保险丝(M),快速保险丝(F),特快速保险丝(FF);按照...
阅读更多
点击排行
室内风扇电机和霍尔元件的检测